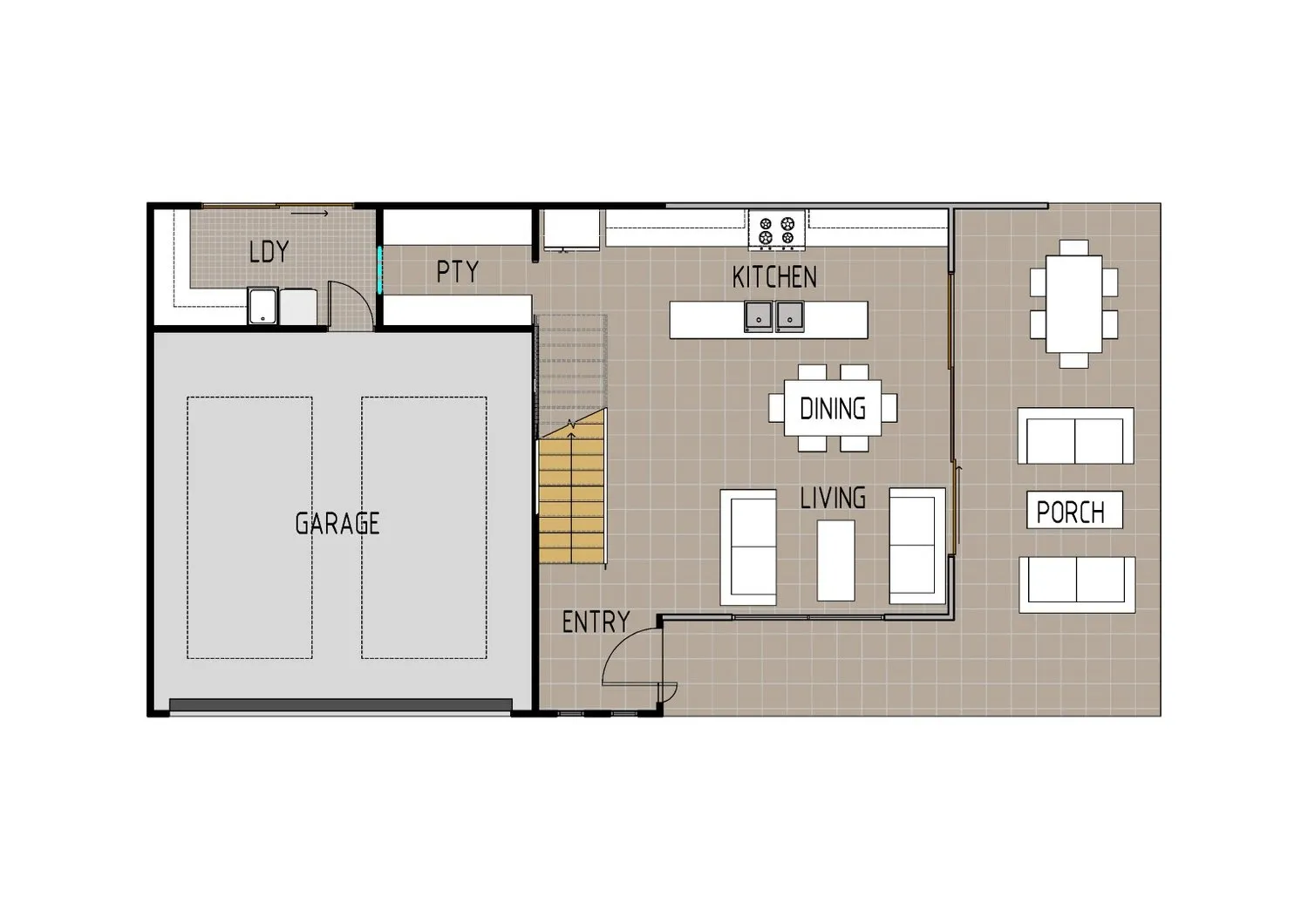
Our ADDERLEY luxury home design boasts many impressive features, from its large entryway to its functional use of space. With an open-plan kitchen/living area overlooking the eye-catching front porch, your family and houseguests can enjoy those relaxing afternoon breezes in style.
The staircase from the entry leads to the second-floor rumpus area and a sizeable 4th guest bedroom and guest bathroom. Continuing up the staircase from the rumpus area, you will come to the main bedroom, which features a personal balcony to take in your views and summer breezes.
Bedrooms 2 & 3 share a bathroom, and for functionality, the study provides a designated work area for those who seek privacy while working at home.
The ADDERLEY caters to everyone.


